Decyzja zatwierdzająca projekt budowlany i pozwolenie na budowę!

Decyzją nr 155/16 z dnia 8 września 2016 r Starosta Kamiennogórski zatwierdził projekt budowlany, udzielając pozwolenia na budowę pn.: "Łączy Nas Bóbr - wykorzystanie potencjału przyrodniczego i kulturowego dla aktywizacji turystycznej na terenie Bramy Lubawskiej i w Mikroregionie Zacler"

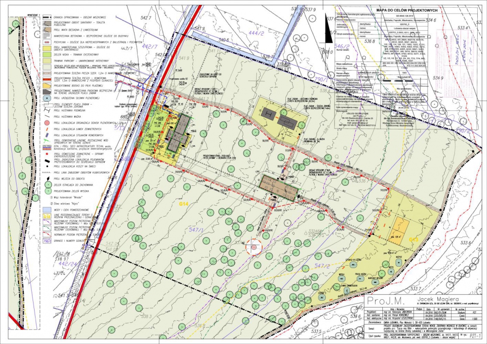
Głównym celem projektu jest doprowadzenie do uporządkowanego wykorzystania walorów turystycznych sztucznego zbiornika wodnego, obejmującego swoim zasięgiem obszar części obrębów wiejskich takich jak: Bukówka, Szczepanów, Miszkowice i Paprotki. Opracowanie obejmuje wytyczenie ścieżek pieszo-rowerowych, wykonanie infrastruktury technicznej, niezbędnej do właściwego korzystania z walorów przyrodniczych i maksymalnego zmniejszenia niekorzystnego wpływu na środowisko. Ponadto przewidziano lokalizację miejsc do zorganizowanego wypoczynku - plaże, mola, siłownie zewnętrzne, elementy małej architektury, ścieżki dydaktyczne, elementy informacyjne, wraz z punktami widokowymi.

W maju 2016 r do programu Interreg V-A Republika Czeska - Polska oś 2 złożony został wniosek dot. zagospodarowania terenu zbiornika Bukówka - wyszacowany na kwotę ponad miliona euro.

Do programu zgłosiło się oprócz nas 76 beneficjentów. Według złożonych wniosków potrzebne jest 120 mln euro, a do rozdania jest tylko 20 mln euro.